街の余白をデザインする、新しいホテル開発のアプローチ
1. 土地仕入れと投資効率の最大化
本プロジェクトでは、7gardenが得意とする「土地仕入れ力」と「企画力」の両軸を最大限に発揮しました。まず注目すべきは、土地仕入れと投資効率の最適化です。今回の開発地は、立ち退きリスクを抱えていましたが、私たちはその“リスク”を“価値”と捉え、複数の地権者との丁寧な交渉を重ねることで、通常よりも低い取得価格を実現。
その分、建築やデザインに再投資し、わかりやすい差別化を図る戦略へと転換しました。この一連のプロセスは、単なるコストカットではなく、「交渉力を企画力に変える」7gardenの企画・開発スタイルを体現するものです。
2. 独自性のある商品企画
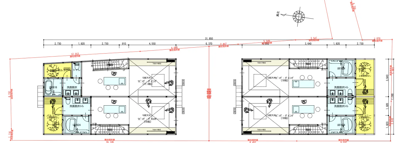
建物は長屋型の二棟の構成とし、その中央に中庭テラスを設けることで、プライバシーと開放感を両立。一般的なビジネスホテルや民泊が多い博多・住吉エリアにおいて、まるで自宅のようにくつろげる“暮らすように泊まる”体験を提供する空間設計としました。
客室は広々とした2LDKタイプで、約16畳のリビングにはアイランドキッチンやダブルシンクを完備。最大6名が宿泊できる仕様とすることで、ファミリーやグループなど多様な滞在ニーズに対応しています。一泊あたり約5万円の宿泊単価を見込み、デザイン性と収益性の両立を実現しています。




3. 既存実績の活用
私たちは、これまでに近隣にて「合い宿すみよし」や「TRIGON HOTEL」など、複数のホテル開発を手掛けてきました。それらのプロジェクトで得た運営ノウハウや特殊な予約動向をより深く分析し、商品企画や設計デザインに反映。
また、2025年7月に開業した「Santé Hotel」を含む3棟の運営実績が、こうした取り組みの成果を示しており、今回の投資判断を後押しする要因となりました。7gardenの強みは、単なるホテル運営会社ではなく、自ら土地取得から企画、設計、デザインのディテールに至るまで踏み込み、データを基に商品力を磨き続ける“現場発想型ディベロッパー”である点にあります。
TRIGON HOTEL 稼働率実績データ*2025年2月開業
4. 競合環境への対応
競合環境への対応も本プロジェクトの大きなテーマでした。住吉周辺は、ビジネスホテルや民泊型施設が数多く存在するエリアです。
そのなかで私たちは、“滞在そのものを目的化できる宿”という新しいポジショニングを構築しました。「暮らすように泊まる」という体験型コンセプトを軸に据えることで、旅行者だけでなく、ワーケーションや長期滞在の需要にも応える柔軟な運営モデルを設計しています。

土地の価値を再定義した、新たな宿泊モデル
この「住吉の長屋ホテルプロジェクト」は、差別化と高収益性の両立を実現するモデルケースづくり、として位置付けています。長屋タイプという独自の建築デザインを採用したことで、宿泊者に他では得られない滞在体験を提供しながら、収益性を担保。単なる“泊まる場所”ではなく、“過ごす時間そのもの”に価値を持たせる宿泊施設として、これまでにない市場ポジションを築きます。
また、プロジェクト成立の過程そのものが、7gardenの強みを象徴しています。
複数地権者との交渉、立ち退き対応、デザイン企画、施工、運営に至るまでを一気通貫で行う開発体制は、他社にはないスピード感と柔軟性を生み出しました。この「土地の仕入れから価値創造までを一貫して行う」手法こそ、7gardenが提供できる最大の付加価値です。
さらに、プロジェクトの成功はエリア全体の活性化にも寄与しています。これまで住居や民泊が中心だった住吉エリアに、新たな宿泊施設のあり方の選択肢を生み出し、街の魅力を再発見する契機となりました。地域の文化や生活のリズムに寄り添う宿泊施設として、観光客だけでなく地元住民からも関心を集めています。本プロジェクトは、今後の都市型宿泊開発における新たな指標として、「住吉モデル」と呼べる再現性と発展性を備えた事例となります。
7gardenは今後も、「土地の可能性を見極め、自ら交渉し、自らの企画力で市場を切り開く」という姿勢を貫き、投資家・パートナーと共に、地域と共鳴するホテル開発を推進してまいります。不動産としての価値、事業としての収益性、そして街としての魅力を同時に高める、その理想を形にしたのが、この住吉の長屋ホテルプロジェクトです。